052-228-4900

営業時間:
09:00~18:00
定休日:
土日祝

名古屋市のテナント・貸店舗・オフィス|株式会社OFFICE ONE(オフィスワン) > (店舗(賃貸))地域から探す > 名古屋市千種区 > WIZ星ヶ丘【 サロン系おすすめ 】 > 1A

WIZ星ヶ丘【 サロン系おすすめ 】 1A

物件紹介

賃料/坪単価
352,000 /
1.17万円
坪数/面積
30.13坪 /
99.60㎡
所在階
1階
管理費・共益費
69,300円
保証金
150万円
礼金
0ヶ月
  • お問い合わせ
  • 検討リストに追加
POINT
美容室向け 居抜き物件 デザイナーズ サロン店舗 居抜物件

PHOTO GALLERY

印刷する
  • 【外観】 | WIZ星ヶ丘【 サロン系おすすめ 】

    【外観】

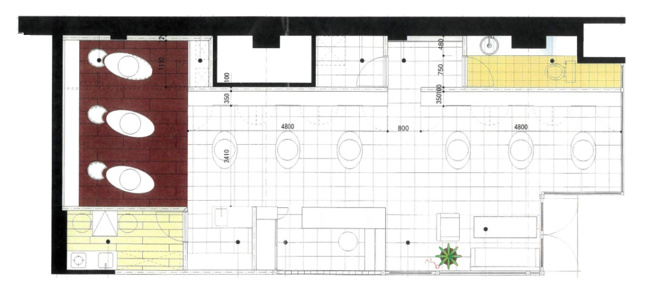
  • 【間取り】 | WIZ星ヶ丘【 サロン系おすすめ 】

    【間取り】

  • 【外観】 | WIZ星ヶ丘【 サロン系おすすめ 】

※写真や図と実際の現状とが異なる場合は現状を優先させていただきます。

設備条件

  • デザイナーズ
  • 居抜物件
  • 美容室向け
  • エレベーター

お問い合わせ

株式会社 OFFICE ONE

052-228-4900

  • 〒460-0003
  • 愛知県名古屋市中区錦2丁目8-25 三富伏見ビル 1階

09:00~18:00  定休日:土日祝

物件概要

【店舗事務所】 物件番号:102063906 情報更新日:2026年03月03日 次回更新予定日:2026年03月17日
所在地 愛知県名古屋市千種区星が丘元町15-16
交通
坪数(面積) 30.13坪(99.60㎡)
賃料/坪単価 35.2万円/1.17万円 管理費・共益費 69,300円
敷金/礼金/保証金 -/0ヶ月/150万円 償却/敷引 50.00%/-
更新料 - 権利金/雑費 -/-
造作譲渡金 - 駐車場/月額料金 -/-
保険加入/料金 -/- 保険名/保険期間 -/-
保証人代行義務 - 保証会社 -
保証会社詳細 - 向き -
築年月(築年数) 1985年 9月 (築40年) 契約期間 2年
種別/構造 店舗事務所/鉄筋コンクリート 用途地域 -
部屋/所在階/階建 1A/1階/4階建 総戸数 -
現況/引渡時期 賃貸中/2026年06月01日 取引態様 仲介
物件番号 102063906 取引条件の有効期限 2026年03月17日
設備条件
  • デザイナーズ
  • 居抜物件
  • 美容室向け
  • エレベーター
備考 スライド償却:1年未満100%、3年未満70%、3年以上50%
ゴミ処分代:月額 6,600円(税込)※業種により変動あり
セコム代:月額 6,600円(税込)
看板掲出料:月額 27,500円(税込)※希望者のみ
取扱会社
  • 株式会社 OFFICE ONE
  • 愛知県名古屋市中区錦2丁目8-25 三富伏見ビル 1階
  • TEL:052-228-4900
  • 愛知県知事 (1) 第025110号
QRコード

QRコード

このQRコードを読み取ることで、スマホでも物件情報を確認できます。

地図

※地図上に表示される物件の位置は付近住所に所在することを表すものであり、実際の物件所在地とは異なる場合がございます。

物件お問い合わせ

必要項目の入力

0/0
必須項目完了

確認画面へ
お進み下さい

0/0
必須項目完了

確認画面へ
お進み下さい

フリガナ

必須

お名前

必須

電話番号

任意

メールアドレス

必須

ご利用用途

任意

要望

任意

利用規約及びプライバシーポリシーを必ずお読みください。左記内容に同意いただいた場合は、確認画面へお進み下さい。

未入力項目があります

この物件を見た人はこちらの物件も見ています

サンコート池下【 名古屋の貸事務所・貸オフィス 】

サンコート池下【 名古屋の貸事務所・貸オフィス 】の画像

賃料
35.6235万円
種別
店舗事務所
住所
愛知県名古屋市千種区池下1丁目
交通
池下駅
徒歩1分

チカシン池下【 店舗系おすすめ 】

チカシン池下【 店舗系おすすめ 】の画像

賃料
34.595万円
種別
店舗一部
住所
愛知県名古屋市千種区覚王山通7丁目
交通
池下駅
徒歩1分

お問い合わせ

株式会社 OFFICE ONE

会社画像

052-228-4900

09:00~18:00  定休日:土日祝

  • 〒460-0003
  • 愛知県名古屋市中区錦2丁目8-25 三富伏見ビル 1階

物件リクエスト

トップへ戻る